Toyota Yaris: Body dimension drawings
ENGINE COMPARTMENT Hatchback

ENGINE COMPARTMENT Sedan

BODY OPENING AREAS (Side View) Hatchback 3 Door

BODY OPENING AREAS (Side View: Front) Hatchback 5 Door

BODY OPENING AREAS (Side View: Rear) Hatchback 5 Door

BODY OPENING AREAS (Side View: Front) Sedan

BODY OPENING AREAS (Side View: Rear) Sedan

BODY OPENING AREAS (Rear View) Hatchback 5 Door

BODY OPENING AREAS (Rear View) Hatchback 3 Door

BODY OPENING AREAS (Rear View) Sedan

UNDER BODY Hatchback

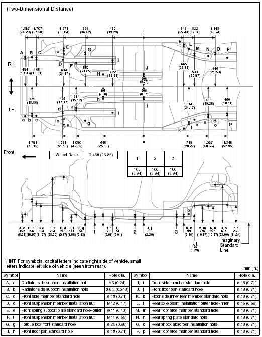
UNDER BODY Sedan

UNDER BODY Hatchback

UNDER BODY Sedan

ENGINE COMPARTMENT

BODY OPENING AREAS (Side View) 3-Door

BODY OPENING AREAS (Side View: Front) 5-Door

BODY OPENING AREAS (Side View: Rear) 5-Door

BODY OPENING AREAS (Rear View) 3-Door

BODY OPENING AREAS (Rear View) 5-Door

UNDER BODY

UNDER BODY

Body dimensions
...
Reference value
ENGINE COMPARTMENT Hatchboack
ENGINE COMPARTMENT Sedan
UNDER BODY
...
See also:
Body panel anti-rust agent (wax) application areas
HINT: 1) Apply anti-rust agent (wax) around the hinges whenever adjusting the
doors and hoods.
2) Even if partially repairing a part, apply anti-rust agent (wax) over the entire
application area ...
Quarter wheel housing outer panel (ASSY)
REPLACEMENT
With the quarter panel removed.
REMOVAL
INSTALLATION
Temporarily install the new parts and measure each part of the new parts in accordance
with the body dimension diagram. ...
Abbreviations used in this manual
For convenience, the following abbreviations are used in this manual.
ABS Antilock Brake System.
A/C Air Conditioner.
assy assembly.
ECT Electronic Controlled Transmission.
ECU Electronic Control ...